Wohn- und Geschäftshaus

Projektbeschreibung
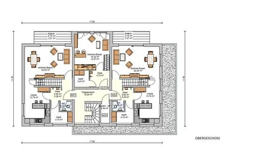
Die moderne Doppelhaushälfte am Rosenweg bietet auf 150 m² Wohnfläche ein ideales Zuhause für Familien. Mit lichtdurchfluteten Räumen, hochwertiger Ausstattung und einem durchdachten Grundriss überzeugt das Haus durch Komfort und Funktionalität. Das Erdgeschoss verfügt über einen großzügigen Wohn-Ess-Bereich mit offener Küche und direktem Zugang zur sonnigen Terrasse. Im Obergeschoss befinden sich drei geräumige Schlafzimmer sowie ein modernes Familienbad.
Der private Garten lädt zum Entspannen ein, während der integrierte Carport und ein zusätzlicher Abstellraum praktischen Stauraum bieten. In ruhiger Wohnlage, jedoch nah zu Schulen, Einkaufsmöglichkeiten und öffentlichen Verkehrsmitteln, vereint diese Doppelhaushälfte stadtnahe Annehmlichkeiten mit entspannter Wohnqualität.



